PROJECTS
ABOUT
PROJECTS
ABOUT
Retail
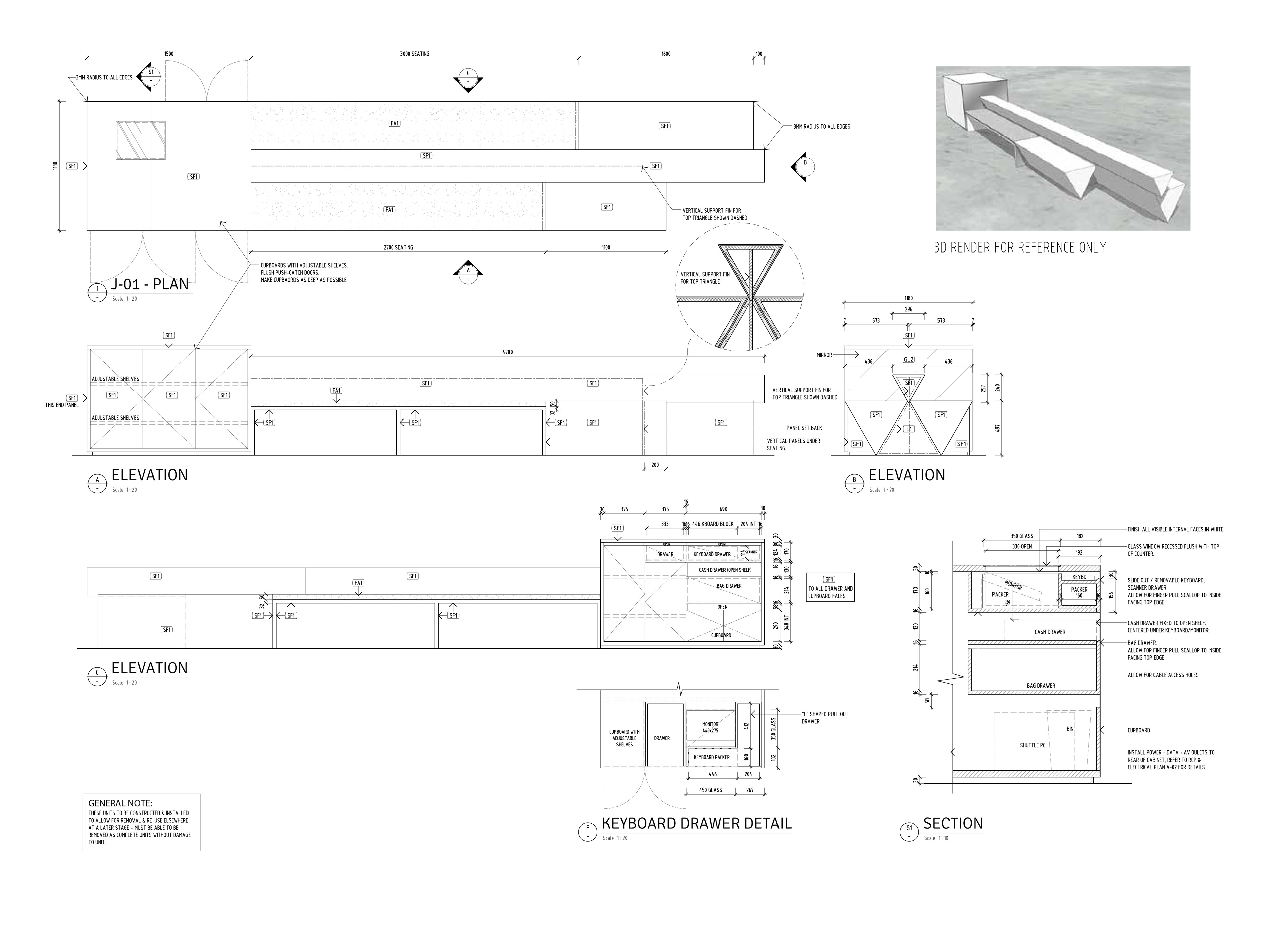
M Dreams, Perth & Melbourne. Designed while employed at Sandbox.
Documentation (AutoCAD)
You may also like
End of Trip
Student Accommodation
Workplace
RESIDENTIAL
Residential
Retail
RETAIL
Retail
WORKPLACE
Retail
↑
Back to Top